Barion Pixel

Villanyszerelők Lapja

Szabványok

Aggregátorok és az ÁVK

2009/10. lapszám | Novothny Ferenc |  20 865 |

Figylem! Ez a cikk 17 éve frissült utoljára. A benne szereplő információk mára aktualitásukat veszíthették, valamint a tartalom helyenként hiányos lehet (képek, táblázatok stb.).

Aggregátorok és az ÁVK

A Villanyszerelők Lapja internetes vitafórumán olvasottak késztettek arra, hogy ezt a szakirodalomban is mostohán kezelt kérdést szakcikkben tisztázzuk. Az áram-védőkapcsoló működéséről, fajtáiról, kiválasztásáról és alkalmazásáról számos cikkben részletesen írtam, többek között e lapnak a hasábjain is, így erre itt most nem térnék ki, az irodalomjegyzék mindenki számára útmutatóul szolgálhat. Az áramfejlesztők alkalmazásakor a villamos biztonságot két különböző feladatra kell osztanunk, egyrészt a tápláló berendezés, másrészt a táplált fogyasztók villamos biztonságáról kell beszélnünk.

A váltakozó áramú fogyasztókat tápláló berendezések szinkrongenerátorok, aszinkrongenerátorok, illetve elektronikus inverterek lehetnek. Ezeknek a gyártmányoknak a villamos biztonságáról a gyártóknak kell gondoskodniuk, és vagy termékszabvány szerinti gyártással, vagy egyenértékűségi nyilatkozattal kell megfelelőségüket igazolniuk. Erről a műszaki dokumentációban a felhasználót informálni kell. (Kisfeszültségen a legkedvezőbb megoldásnak a kettős szigetelésű gyártmány tekinthető.) Áram-védőkapcsoló alkalmazása – elméleti okokból – nem jön szóba.

Az áramfejlesztők alkalmazásakor a villamos biztonságot két különböző feladatra kell osztanunk, egyrészt a tápláló berendezés, másrészt a táplált fogyasztók villamos biztonságáról kell beszélnünk. A váltakozó áramú fogyasztókat tápláló berendezések szinkrongenerátorok, aszinkrongenerátorok, illetve elektronikus inverterek lehetnek. Ezeknek a gyártmányoknak a villamos biztonságáról a gyártóknak kell gondoskodniuk, és vagy termékszabvány szerinti gyártással, vagy egyenértékűségi nyilatkozattal kell megfelelőségüket igazolniuk. Erről a műszaki dokumentációban a felhasználót informálni kell. (Kisfeszültségen a legkedvezőbb megoldásnak a kettős szigetelésű gyártmány tekinthető.) Áram-védőkapcsoló alkalmazása — elméleti okokból — nem jön szóba.

Az áramfejlesztőkről táplált áramkörök és fogyasztók közvetett illetve közvetlen érintés elleni védelmét az MSZ 2364-551:1999 szabvány 55.kötet: Egyéb szerkezetek. 551. főfejezet: Kisfeszültségű áramfejlesztők, illetve az MSZ HD 60364-7-711:2005 szabvány 7-717. rész: Mobil vagy szállítható egységek előírásai szerint kell kialakítani.

Itt egy picit meg kell szakítanom a cikk gondolatmenetét, és ki kell térnem a szabványokra. Az ok az, hogy – amint említettem – az MSZ 2364-551:1999 szabvány 55. kötet: egyéb szerkezetek 551.főfejezet: Kisfeszültségű áramfejlesztők vonatkozik az aggregátorokra. Ez a ma érvényben lévő szabvány, amely az IEC 364-5-551:1994 nemzetközi szabvány az Európai Unióban a CENELEC által kibocsátott HD 384.5.551 jelzettel kibocsátott szabványának hazai megfelelője. Nincs még az újonnan átszerkesztett és kibocsátott MSZ HD 60364 szabványsorozatban kisfeszültségű áramfejlesztőkre vonatkozó új szabvány, de az MSZ HD 60364-7-717:2005 Mobil vagy szállítható egységek szabvány előírásai és rajzai – noha az áramfejlesztőkre nem vonatkoznak – mégis az alkalmazásokhoz sok támponttal szolgálhatnak.

Visszatérve az 551-hez, arra kell még felhívni a figyelmet, hogy a szabvány sorra hivatkozik a forrásszabványra, azaz az IEC 364-4-41:1992 fejezeteire, szakaszaira és pontjaira. Azaz a hivatkozások az angol nyelvű nemzetközi szabvány megfelelő pontjaira vonatkoznak. Szerencsére a forrásszabványnak létezik magyar nyelvű megfelelője, az MSZ 2364-410:1999+1M:2004 41. kötet: Áramütés elleni védelem. Ez a szabvány vissza van vonva – természetesen a neki megfelelő forrásszabvány is –, így a hivatkozott fejezetnek megfelelő fejezetet meg kell keresni az érvényben lévő MSZ HD 60364-4-41:2007 átszerkesztett szabványban. Ehhez segítséget az új szabvány D melléklete nyújt, miszerint pl. a 413.1. A táplálás önműködő lekapcsolása fejezetnek az új szabványban a 411. Védelmi mód: a táplálás önműködő lekapcsolása főfejezet felel meg. Ez azért fontos, mert így az érvényben lévő szabvány előírásait kell betartani, amely kihat mind a kialakításra, mind a kikapcsolási időkre.

Ezen kis értelmező kitérő után nézzük az áram-védőkapcsoló (ÁVK) — vagy ahogy a vitafórumon emlegetik, a „FI” relé — aggregátorok táplálta áramkörökre vonatkozó előírásait.

I.) MSZ 2364-551:1999 szabvány 55. kötet: egyéb szerkezetek 551.főfejezet: Kisfeszültségű áramfejlesztők 551.4. fejezet: Védelem közvetett érintés ellen

Biztosítani kell a berendezés közvetett érintés elleni védelmét minden olyan tápforrás vagy tápforrás kombináció vonatkozásában is, amelyek más forrásoktól vagy forrás kombinációktól függetlenül üzemelnek. Azaz akár független, akár a hálózattal párhuzamos a járás stb.

Továbbiakban a szabvány a védővezető nélküli érintésvédelmi módokkal nem foglalkozik, azaz azokat az MSZ HD 60364-4-41 általános előírásai szerint kell alkalmazni, semmilyen többletelőírás nincs!

Ha azonban a „Védelem a táplálás önműködő lekapcsolásával” közvetett érintés elleni védelmi módokat (TT-, TN-, IT-rendszer) választjuk, akkor az általános előírásokon kívül be kell tartani a következő kiegészítő követelményeket is!

1. Az áramfejlesztő a közcélú hálózat helyettesítő alternatívája

11.) Ha TN-rendszerben üzemel helyettesítő áramforrásként, akkor az önműködő lekapcsolással működő védelem nem alapulhat a közcélú hálózat földelt pontjához való csatlakozáson, önálló, megfelelő földelőt kell készíteni.
Ennek oka a nullavezető – esetlegesen szándékos – leválasztása. Az ÁVK szempontjából – üzemi áramok ÁVK-n átvezetése – a leválasztás az alkalmazás szükséges feltétele!
12.) TN-rendszerek esetében, ha a nullavezető nincs elválasztva, az áram-védőkapcsolót úgy kell elhelyezni, hogy a párhuzamos nulla-föld útvonal kialakulása miatti helytelen kioldás elkerülhető legyen.
Áram-védőkapcsoló után a nullavezetőt tilos leföldelni, mert a nullavezetőn folyó áram egy része a földön át — az ÁVK-t megkerülve – záródna, és helytelen kioldást eredményezne. Ugyanilyen párhuzamos, megkerülő áramút alakul ki, ha a tartalék áramfejlesztő az elosztó után beépített áram-védőkapcsoló fogyasztói oldalához kapcsolódik.

2. A berendezés és az áramfejlesztő nem helyhez kötött telepítésű

21.) A szerkezeteket az IEC 364-5-54-nek megfelelő védővezetőkkel kell összekötni és erre az IEC 364-5-54 54F táblázatának megfelelő vezeték vagy zsinórvezeték egyik erét kell alkalmazni.
Ez azt jelenti, hogy csak védővezetős érintésvédelmi mód választható!
22.) TN-, TT-, IT-rendszerekben az önműködő lekapcsolásra legfeljebb 30 mA-es névleges különbözeti kioldóáramú ÁVK-t kell alkalmazni.
Azaz mobil aggregátoroknál is védővezetős érintésvédelmet kell kialakítani, és ÁVK-t kell alkalmazni. Fontos megjegyezni, hogy IT-rendszerben alkalmazása nem azt jelenti, hogy az első hibára le kell, hogy oldjon — elvesztenénk az alkalmazás célját, tudniillik, hogy testzárlatra ne történjen lekapcsolás — hanem azt, hogy második testzárlatra kapcsoljon le! Ennek megvalósítása IT-rendszerben nem egyszerű, csak részhálózat védhető egy ÁVK-val. Ebben a cikkben épp erre mutatunk példákat!

Az MSZ HD 60364-4-41:2007 szabvány követelménye, miszerint 30 mA különbözeti kioldóáramú ÁVK-t kiegészítő védelemként alkalmazni kell, IT-rendszerre is vonatkozik.

A kiegészítő védelem azt jelenti, hogy az áramütés elleni védelem kiegészítő (tartalék) védelme, azaz akár az alapszigetelés (üzemi szigetelés) hibásodik meg, akár testzárlat lép fel, és valaki közvetlenül vagy közvetve a „fázishoz” hozzáér, az ÁVK lépjen működésbe és kapcsolja le a sérült hálózatrészt. (A kiegészítő védelemkénti alkalmazás azt jelenti, hogy védővezető alkalmazása nélkül az áram-védőkapcsoló alkalmazása nem fogadható el hibavédelemként.)

Azaz minden újonnan létesítendő csatlakozóaljzatot el kell látni legfeljebb 30 mA névleges különbözeti kioldóáramú ÁVK-val. Ennek megvalósítása nem függ a feszültség nagyságától (kivéve a SELV, PELV és villamos elválasztás védelmi módokat), de IT-rendszerben alkalmazása jelentősen különbözik a vezetékek számától függően.
A teljességre törekvés igénye nélkül (pl. egyfázisú ellátás, háromfázisú négyvezetékes ellátás, fogyasztói csoportok közös védelme stb.) az ÁVK kiegészítő védelem alkalmazására lássunk néhány példát. Az IT-rendszer legyen szigetelt csillagpontú, és a szabvány szerinti állandó szigetelésellenőrző berendezés legyen beépítve, a fogyasztók (közös) védőföldeléshez védővezetővel csatlakozzanak: ezen feltételekkel az ÁVK alkalmazására következzen itt öt példa!

1.  A betáplálási vezetékben elhelyezett egyetlen áram-védőkapcsoló

A betáplálási vezetékben elhelyezett egyetlen áram-védőkapcsolóval egyidejűleg több fogyasztó kiegészítő védelme nem oldható meg, mert a második hiba nem tudja az ÁVK-t működtetni. A kettős testzárlati hiba hatására – mint az az 1. ábrán látható — nem lép fel az ÁVK-t megkerülő hibaáram, azaz nincs különbözeti áram sem. Miután a védővezetőn záródó kettős földzárlatról van szó, ezt az egyik vagy mindkét beépített túláramvédelmi eszköznek hárítani kell az MSZ HD 60364-4-41:2007 szabvány szerint:

  • legfeljebb 32 A-es végáramkörökben a szabvány 4.41. táblázata szerinti lekapcsolási időn belül,
  • 32 A-nél nagyobb áramkörökre 5 s-on belül.

1. ábra

2. Szabványos kivitelezés

Minden fogyasztót, illetve csatlakozóaljzatot külön ÁVK véd, mint azt a 2. ábra mutatja. A két különböző testzárlatos fogyasztó két különböző védővezetőjén át záródó hibaáram mindkét ÁVK-n átfolyik, és ha nagysága meghaladja az ÁVK névleges különbözeti kioldóáramát, akkor azokat (legalább az egyiket biztosan!) működteti. Az ÁVK-val védett testzárlatos fogyasztókat a kiegészítő védelem leválasztja a hálózatról.

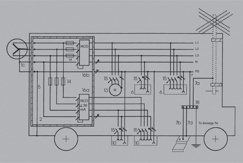
7. ábra. Csatlakoztatási példa az egységen belül elhelyezett, I. vagy II. év. osztályú kisfeszültségű áramfejlesztőhöz földelővel vagy földelő nélkül

3. Vegyes kivitelezés

Egyes fogyasztók, illetve csatlakozóaljzatok áram-védőkapcsolóval védettek, a többi fogyasztót, illetve a korábban létesített csatlakozóaljazatokat nem védi ÁVK. Második testzárlatnál a következő esetek lehetségesek:
a. Az egyik testzárlat ÁVK-val nem védett fogyasztónál, a másik testzárlat ÁVK-val védett fogyasztónál következik be, miként azt a 3. ábrán látjuk. A hibaáram két különböző fogyasztó két különböző védővezetőjén keresztül záródik, átfolyik az ÁVK-n, és ha nagysága meghaladja az ÁVK névleges különbözeti kioldóáramát, akkor azt működteti. Az ÁVK-val védett testzárlatos fogyasztót leválasztja a hálózatról. (Nagy valószínűséggel a túláramvédelmi eszköz azon esetben se tud működésbe lépni, ha a kettős testzárlat árama a túláramvédelem kioldóáramát meghaladja, mert a pillanatműködésű ÁVK gyorsabb működésével hamarabb megszakítja az áramkört, mint a túláramvédelmi eszköz reakcióideje.)
b. Mindkét testzárlat ÁVK-val nem védett fogyasztónál következik be. A hibaáramok éppen úgy folynak, miként azt az 1. ábrán láttuk (természetesen a betáplálásnál nincs ÁVK!). A hibaáram két különböző fogyasztó két különböző védővezetőjén keresztül záródik, és az 1.) pontban leírtak szerint működteti a túláramvédelmet.

c. Mindkét testzárlat ÁVK-val védett fogyasztónál következik be. A hibaáramok éppen úgy folynak, miként azt a 2. ábrán láttuk. A hibaáram két különböző fogyasztó két különböző védővezetőjén keresztül záródik, és a 2.) pontban leírtak szerint működteti a kiegészítő védelmet.

2. ábra

4. Vegyes kivitelezés

Egyes fogyasztók, illetve csatlakozóaljzatok áram-védőkapcsolóval védettek, a többr /bi fogyasztót, illetve a korábban létesített csatlakozóaljazatokat nem védi ÁVK. Az egyik fogyasztó testzárlatos, a hálózaton „földzárlatos” üzemállapot van, és ekkor valaki megérinti egy ÁVK-val védett fogyasztó fázisvezetőjét, ezt az esetet a 4. ábrán vázoltuk (gyakorlati példaként egy hordozható fogyasztó kézben tartott csatlakozó kábelének szigeteléssérülési esetét képzelhetjük el). A kettős földzárlati áram az emberen és a földön keresztül záródik, és átfolyik az ÁVK-n. A hibaáramot, mint különbözeti áramot érzékeli az ÁVK, és ha az meghaladja az ÁVK névleges különbözeti kioldóáramát (≥30 mA), megszakítja a megérintett áramkört. Az ÁVK érzékenységének, gyors működésének köszönhetően a balesetes nagy valószínűséggel nem szenved maradandó károsodást [3]. A 4. ábrán ÁVK-val nem védett fogyasztó okozza a hálózat földzárlatos üzemét, de az elmondottak a balesetes szempontjából ugyanúgy igazak, ha ÁVK-val védett fogyasztó okozza a földzárlatos üzemállapotot (azaz a 4. ábrán nem a balesetestől jobbra, hanem a balra lévő fogyasztó lenne testzárlatos.).

3. ábra

4. ábra

Az 5. ábra példa arra, amikor az ÁVK-val létesített kiegészítő védelem sem képes megvédeni a balesetest. Tetszőleges számú fogyasztót ellátó hálózaton legyen egy ÁVK-val védett fogyasztó, amely testzárlatos. Miután a többi fogyasztó a jelenséget nem befolyásolja, az 5. ábrán csak egyetlen ÁVK-val védett fogyasztót ábrázoltunk. Ha az IT-rendszer földzárlatos üzemében a balesetes épp a földzárlatos fogyasztó ÁVK-val védett – nem a testzárlatot okozó – fázis vezetékét érinti meg (csupasz vezetéket vagy sérült szigetelésű vezetéket), nem keletkezik megkerülő áram, azaz az ember testén a föld felé folyó áram nem hoz létre az ÁVK-ban különbözeti áramot (oda- és visszafolyik, így nem hoz létre gerjesztést!), az ÁVK működésképtelen. Ráadásul a föld és a balesetes nagy ellenállása miatt a túláramvédelmi berendezések sem tudnak lekapcsolni. (Természetesen, ha az ÁVK által védett hálózatrészen kívül akárhol fogja meg az ember a másik két aktív vezeték bármelyikét, az ÁVK működik, leválasztja a testzárlatos fogyasztót, és az áramkör megszakad. Emberünkön csak a kisfeszültségű hálózat egyfázisú földzárlatának csekély árama folyik /a szigetelésen keresztül szivárgó áram és a kapacitív áram eredője, amelyről az [5] cikkben olvashatunk/.)

5. ábra

Az aggregátorokat különböző kiviteli módokban gyártják, mind a feszültséget, mind a fázisszámot, mind a kivezetett vezetéket tekintjük. Legtöbbször csak a tekercsvégek vannak kivezetve. Ezen esetben – amennyiben védővezetős érintésvédelemmel akarjuk üzemeltetni – TN- vagy IT-rendszert alakíthatunk ki. TN-rendszer esetében az üzemi földelést is nekünk kell kialakítani! A szabvány szerint TN-rendszert csak olyan hálózaton szabad alkalmazni, amelynél a tápláló rendszernek van egy közvetlenül földelt üzemi vezetője. Legtöbbször ez a kivezetett csillagpont és az onnan induló nullavezető (6/a. ábra), ha nincs nulla- vagy középpont (6b. ábra; 6/g. ábra), vagy nem hozzáférhető, akkor az egyik fázisvezetőt kell leföldelni (6/d. ábra; 6/e. ábra).

6. ábra

II.) MSZ HD 60364-717:2005-es kiadásában a 717.412.5. pontban: Mobil vagy szállítható egységek közvetlen érintés elleni védelmére a SELV-vel, vagy PELV-vel, vagy villamos elválasztással védett áramkörökről táplált csatlakozóaljzatok kivételével minden olyan csatlakozó aljzatot, amely az egységen kívüli fogyasztókészülékek táplálására szolgál, kiegészítő védelemként egy, legfeljebb 30 mA-nél nem nagyobb névleges kioldóáramú áram védőkapcsolóval kell ellátni. Amennyiben a mobil egységen belüli hálózat földelt rendszerű (TT vagy TN) akkor a csatlakozóaljzatok védelme közös áram-védőkapcsolóval is megoldható, ha azonban a hálózat földeletlen (IT) rendszerű, akkor csak csatlakozóaljzatonkénti külön áram-védőkapcsoló működőképes. 

Mobil vagy szállítható egységek (önhajtású vagy vontatott járművek, illetve tartókereten elhelyezett, szállítható konténerek vagy kabinok) hibavédelme (közvetett érintés elleni védelme) vonatkozásában – miután aggregátorok és az ÁVK a téma – azt az esetet kell kiragadnunk, amikor a mobil egység kisfeszültségű áramfejlesztőhöz csatlakozik. A 717.413.1 pont szerint a tápellátás céljára csak TN- és IT-rendszer alkalmazható és a védelmet a táplálás önműködő lekapcsolásával kell megvalósítani és

– TN-rendszer alkalmazása esetén:

  • ha a burkolat vezetőképes, akkor ezt a burkolatot a nullponthoz, vagy ha az nincs, akkor egy fázisvezetőhöz kell csatlakoztatni (7. ábra, 8. ábra);
  • vezetőképes burkolat nélküli egységben TN-rendszer használata esetén az egységben lévő szerkezetek testét kell védővezetőn át a nullaponttal vagy, ha az nincs, egy fázisvezetővel összekötni.

7. ábra

8. ábra

– IT-rendszer alkalmazása esetén:

  • ha a burkolat vezetőképes a szerkezetek testét a vezetőképes burkolathoz kell csatlakoztatni;
  • vezetőképes burkolat nélküli egységben a belső testeket egymással össze kell kötni, és a védővezetőhöz kell csatlakoztatni.

A szerteágazó téma részletes tárgyalására még egy cikksorozat sem elegendő, így most csak a legfontosabbnak ítélt megoldások, alapvető kapcsolások ismertetésére tettünk kísérletet!

AggregátorÁram-védőkapcsolóSzabványok

Kapcsolódó